gebouw 1, Grote Kerkstraat
Breaking news!
Sloop aan Grote Kerkstraat gestart
Eerste appartementen voorjaar 2027 beschikbaar
Zie jij jezelf wonen op deze unieke locatie?
trotse kopers aan het woord:
Stijlvol en modern wonen in Vista Gummarus
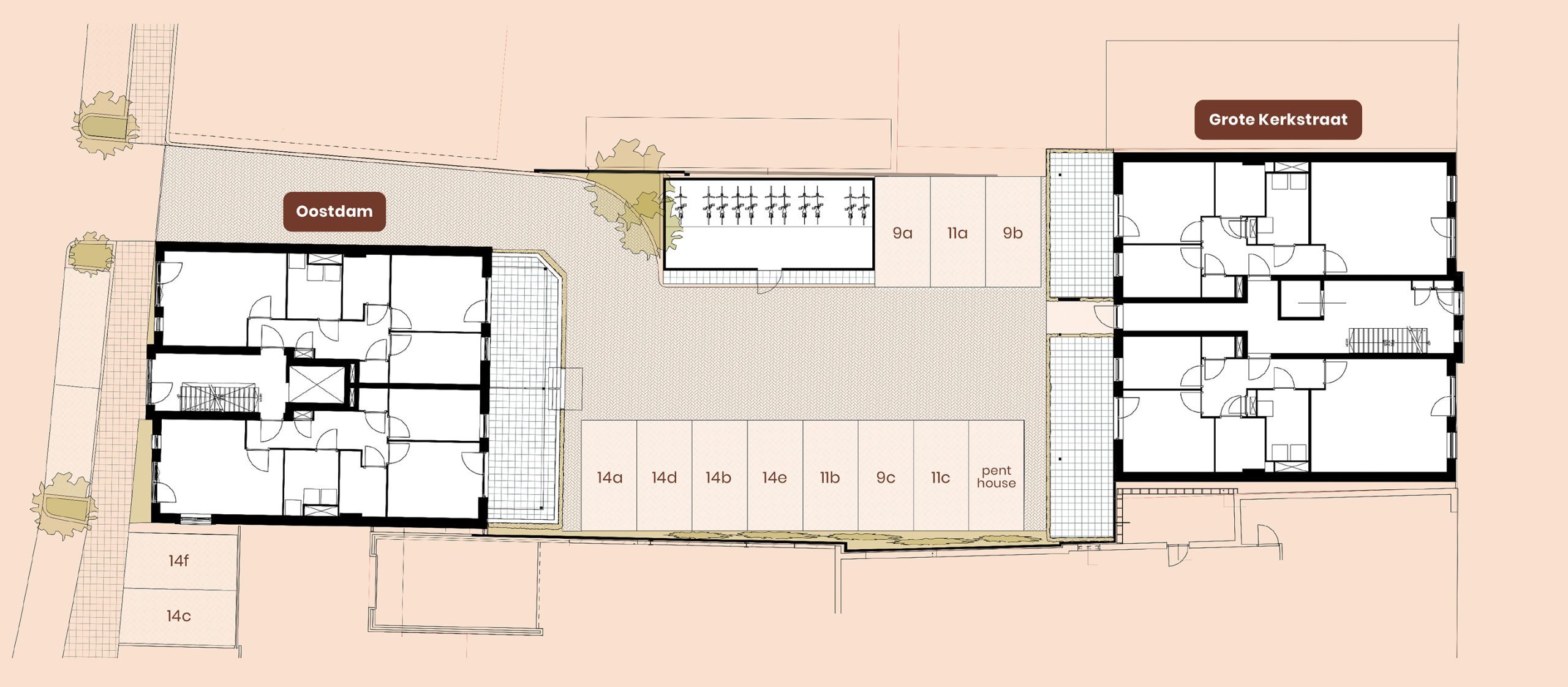
Aan de Grote Kerkstraat en de Oostdam in hartje Steenbergen verrijzen de dertien stijlvolle, energiezuinige appartementen van Vista Gummarus. Je woont er in alle rust en toch middenin de stad. Met de imposante neogotische St. Gummaruskerk als buur.
bekijk hier de video over het project:
Thuiskomen in Vista Gummarus
Wonen in Vista Gummarus is thuiskomen op z’n best. Binnen geniet je van rust en wooncomfort. Buiten vind je aan de voorzijde van je appartement het bruisende stadscentrum en aan de achterzijde (waar zich de slaapkamers bevinden) een besloten binnenterrein. Een unieke woonomgeving met het gezellige stadsleven binnen handbereik.
De verkoop is in volle gang!
Zie jij jezelf al helemaal wonen op deze unieke locatie?
